Nuestros Modelos de Casas
Descubrí las distintas opciones de construcción que tenemos para vos. Elegí el estilo que más te guste.
Características Constructivas
Todas nuestras viviendas incluyen las siguientes especificaciones técnicas
Caños para agua fría y caliente de termofusión para baño y cocina.
Caños y cajas de luz para toda la vivienda.
Techo con chapa trapezoidal de zinc antigranizo (Siderar).
Aberturas de aluminio blanco, sistema corredizo, con vidrios y rejas.
Puertas de entrada/salida de chapa doble inyectada con cerradura.
Aislantes correspondientes para toda la vivienda.
Paredes exteriores revestidas en Superboard (placas de cemento anti-humedad) Eternit, o revestidas en todo su perímetro con ladrillo (Chacabuco) rasado o junta tomada a media vista.
Paredes interiores, divisiones y cielo raso con placas de roca de yeso maciza (Durlock).
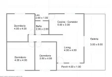
Explorá Nuestros Planos
Filtrá por superficie y encontrá el plano ideal para tu terreno y necesidades



